Μελέτες – Άδειες

Η εταιρία μας έχει αναπτύξει έναν ευρύ κύκλο συνεργασίας με έμπειρους αρχιτέκτονες και πολιτικούς μηχανικούς, οι οποίοι είναι σε θέση να αναλάβουν την διεκπεραίωση της οικοδομικής αδείας εφόσον δεν υπάρχει κάποιος συγκεκριμένος μηχανικός από την πλευρά του πελάτη. Σε κάθε περίπτωση όμως εκπονείται από μηχανικούς της εταιρίας μας στατική μελέτη η οποία τίθεται στην διάθεση του υπεύθυνου μηχανικού για την διεκπεραίωση της οικοδομικής αδείας.

ΑΡΧΙΤΕΚΤΟΝΙΚΗ ΜΕΛΕΤΗ

Ο σχεδιασμός των κτιρίων ξεκινάει με την αρχιτεκτονική μελέτη. Το αρχιτεκτονικό σχέδιο πρέπει να ανταποκρίνεται στα όνειρα και στις απαιτήσεις του ιδιοκτήτη και να συμφωνεί με τις διατάξεις του Γενικού Οικοδομικού Κανονισμού και του Κτιριοδομικού Κανονισμού.
Στη αρχιτεκτονική μελέτη καθορίζονται η κάτοψη, οι διαστάσεις και η διαμόρφωση των εσωτερικών χώρων του κτιρίου ώστε να εκπληρώνονται στον μεγαλύτερο δυνατό βαθμό οι επιθυμίες του ιδιοκτήτη. Επίσης καθορίζονται η κατάλληλη θέση και ο προσανατολισμός του κτιρίου μέσα στο οικόπεδο και γίνεται κατάλληλος σχεδιασμός και χωροθέτηση των ανοιγμάτων ανά προσανατολισμό ανάλογα με τις απαιτήσεις του ηλιασμού, του φυσικού φωτισμού και του αερισμού.

ΣΤΑΤΙΚΗ ΜΕΛΕΤΗ

Με την ολοκλήρωση της αρχιτεκτονικής μελέτης αρχίζει η στατική μελέτη. Το αρχιτεκτονικό σχέδιο μεταφέρεται σε έναν τρισδιάστατο φορέα από μεταλλικά στοιχεία λεπτότοιχων διατομών, ο οποίος να είναι σε θέση να παραλάβει όλα τα δυναμικά και στατικά φορτία που έπεται να ασκηθούν πάνω στην κατασκευή σε ολόκληρο το χρονικό διάστημα της ζωής της.

Η στατική μελέτη και η μελέτη εφαρμογής εκπονούνται από μηχανικούς της εταρίας μας και τίθονται στη διάθεση του πελάτη και του εκάστοτε μηχανικού για την διεκπεραίωση της οικοδομικής αδείας και της εποπτείας του έργου.

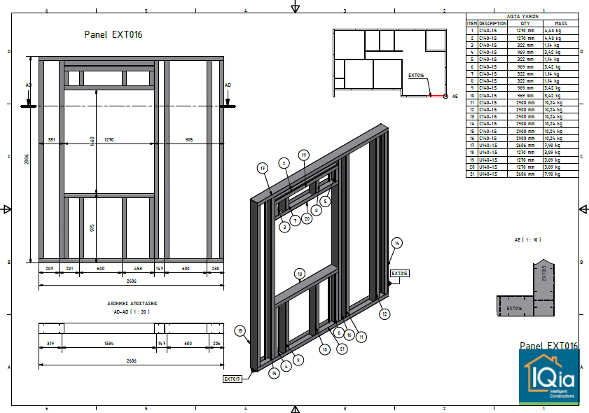
ΜΕΛΕΤΗ ΕΦΑΡΜΟΓΗΣ

Το τελευταίο στάδιο της μελέτης των κτιρίων που κατασκευάζονται με το σύστημα δόμησης της IQia είναι η μελέτη εφαρμογής. Στο στάδιο αυτό δημιουργούνται τα κατασκευαστικά σχέδια του κάθε κτιρίου. Ο μεταλλικός σκελετός χωρίζεται σε πανέλα τοιχοποιίας, πανέλα στέγης και πανέλα πατωμάτων.

Για κάθε πανέλο γίνεται ο σχεδιασμός των επιμέρους μεταλλικών του στοιχείων με τις πραγματοποιούμενες διαστάσεις τους με ακρίβεια χιλιοστού καθώς και ο σχεδιασμός των επιμέρους συνδέσεων.

Στα πανέλα δίνεται ένας κωδικός καθώς μία λίστα με τις διατομές που απαιτούνται για την συναρμολόγηση τους με τις αντίστοιχες διαστάσεις τους. Με αυτόν τον τρόπο επιτυγχάνεται η συναρμολόγηση οποιουδήποτε συγκεκριμένου πανέλου και με την βοήθεια του κωδικού του να τοποθετείται στο ανάλογο σημείο της κατασκευής.

Τα σχόλια είναι κλειστά.